Sold STC
Offers in Excess of £1,250,000

6 bed detached house for sale in Cassel Avenue, Branksome Park, BH13

Shortlist

Key features

  • Spacious family home
  • Fantastic social space, connecting kitchen/living and bifold doors to garden
  • Walking distance to the beach
  • Garden room
  • Three bathrooms
  • Generously sized bedrooms

Video

A charming six-bedroom family home with classic character, nestled in the highly desirable location of Branksome Park.

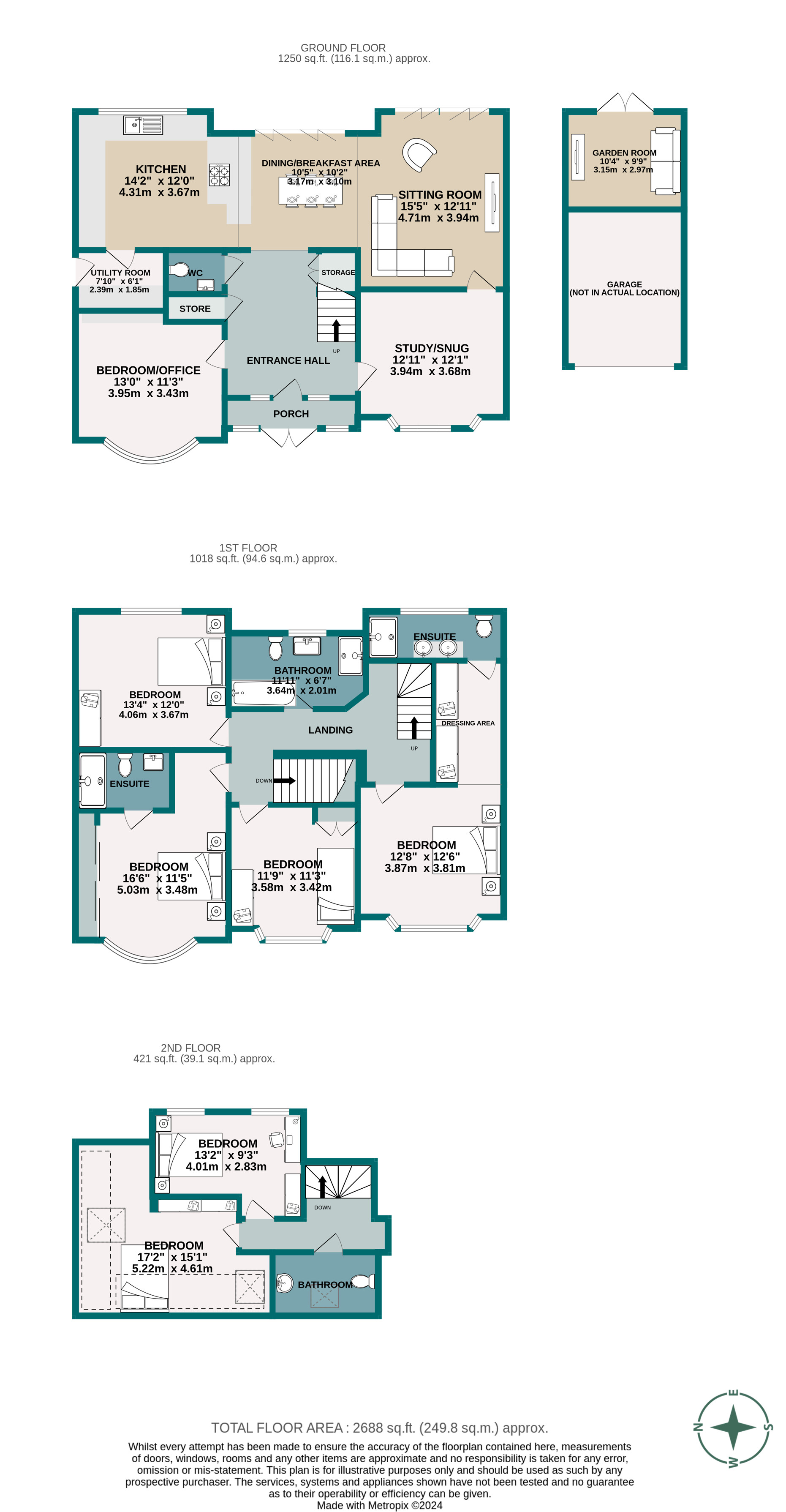
This charming home provides an elegant symmetry, with classic bay windows that frame the central entrance hall. As you step inside, you’re greeted by a squared archway leading into an expansive kitchen, dining, and day room that spans the rear of the property. The kitchen is well-equipped with modern conveniences, including double ovens, and wraps around three sides to showcase a stunning panoramic window overlooking the garden. There is a separate utility room and designated dining and lounge areas that are finished in a contemporary colour palette, which provide an open and inviting space ideal for entertaining. When desired, the bifold doors extend the living area out to the deck, perfect for alfresco dining and relaxation.

The family lounge connects seamlessly to one of the two front reception rooms, which could be tailored as a home office. A convenient cloakroom is also positioned in the hallway for easy access. A beautiful staircase leads up to the first-floor landing, where you’ll find four spacious double bedrooms. The front-facing bedrooms feature charming bay windows, with two enjoying en-suite shower rooms. The remaining two bedrooms on this level share a family bath and shower room. The second-floor loft conversion offers two additional bedrooms with a separate WC tucked into the eaves, adding a touch of character.

Outside, the front and rear gardens are bordered by mature trees and hedging, creating a sense of privacy. The garage extends into a garden room, leading to a deck that enjoys sun throughout most of the day.

Positioned in an enviable location, this period family home benefits from direct access to the beach via a picturesque footpath just at the end of the road. The charming villages of Canford Cliffs and Westbourne are within close proximity, offering a variety of restaurants, cafes, boutiques, and more. Branksome Dene Beach, is just a short walk away via a secluded path through the pine-lined chine, bringing you to miles of award-winning sandy coastline. For commuters, Branksome Railway Station is only 1.5 miles away, with direct trains to London in approximately two hours.

Stamp duty due

Based on a sale price of £1,250,000 the total amount of stamp duty payable will be:

*

Last updated: The calculator has been updated to reflect changes in stamp duty following the Autumn Budget on 30th October 2024 for April 1st 2025 onwards.

* This value is based on the standard rate and not applicable to first-time buyers or buy-to-let / second home buyers.

27 Property images

6 bed detached house for sale in Cassel Avenue, Branksome Park, BH13 0
6 bed detached house for sale in Cassel Avenue, Branksome Park, BH13 1
6 bed detached house for sale in Cassel Avenue, Branksome Park, BH13 2
6 bed detached house for sale in Cassel Avenue, Branksome Park, BH13 3
6 bed detached house for sale in Cassel Avenue, Branksome Park, BH13 4
6 bed detached house for sale in Cassel Avenue, Branksome Park, BH13 5
6 bed detached house for sale in Cassel Avenue, Branksome Park, BH13 6
6 bed detached house for sale in Cassel Avenue, Branksome Park, BH13 7
6 bed detached house for sale in Cassel Avenue, Branksome Park, BH13 8
6 bed detached house for sale in Cassel Avenue, Branksome Park, BH13 9
6 bed detached house for sale in Cassel Avenue, Branksome Park, BH13 10
6 bed detached house for sale in Cassel Avenue, Branksome Park, BH13 11
6 bed detached house for sale in Cassel Avenue, Branksome Park, BH13 12
6 bed detached house for sale in Cassel Avenue, Branksome Park, BH13 13
6 bed detached house for sale in Cassel Avenue, Branksome Park, BH13 14
6 bed detached house for sale in Cassel Avenue, Branksome Park, BH13 15
6 bed detached house for sale in Cassel Avenue, Branksome Park, BH13 16
6 bed detached house for sale in Cassel Avenue, Branksome Park, BH13 17
6 bed detached house for sale in Cassel Avenue, Branksome Park, BH13 18
6 bed detached house for sale in Cassel Avenue, Branksome Park, BH13 19
6 bed detached house for sale in Cassel Avenue, Branksome Park, BH13 20
6 bed detached house for sale in Cassel Avenue, Branksome Park, BH13 21
6 bed detached house for sale in Cassel Avenue, Branksome Park, BH13 22
6 bed detached house for sale in Cassel Avenue, Branksome Park, BH13 23
6 bed detached house for sale in Cassel Avenue, Branksome Park, BH13 24
6 bed detached house for sale in Cassel Avenue, Branksome Park, BH13 25
6 bed detached house for sale in Cassel Avenue, Branksome Park, BH13 26

Further details

  • Status: Sold STC
  • Size: 2688 sq ft
  • Council tax band: G
  • Parking spaces: Off Street, Garage
  • Reference: 616422

What else you need to know?

  • Property age bracket: Period

Location