Asking Price £2,295,000

5 bed detached house for sale in Elms Avenue, Poole, BH14

Shortlist

Key features

  • Five-bedroom detached home
  • Fully remodelled to a high specification
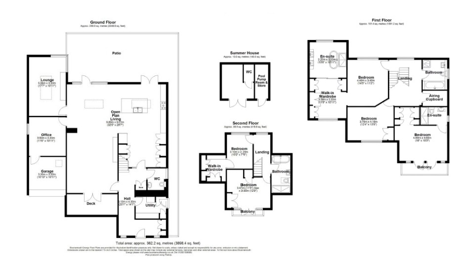
  • Approx. 3,600 sq ft of accommodation
  • Open-plan Neptune kitchen/family room
  • Principal suite with dressing area & luxury en suite
  • Flexible top floor (guest suite/home office)
  • Landscaped garden with outdoor swimming pool
  • Private access to residents’ communal green
  • Sought-after location near Poole Harbour
  • Option for Parkstone Yacht Club membership
An exceptional five-bedroom family home combining elegant design with modern living, featuring a show-stopping Neptune kitchen, versatile living space, and a sun-filled garden with private pool.

A beautifully remodelled five-bedroom detached home, finished to an exceptional standard throughout and offering the style and quality of a brand-new show home.

Extending to approximately 3,600 sq ft, this impressive property provides spacious and versatile accommodation, including five bedrooms and four bathrooms. The principal suite is a standout feature, complete with a bespoke fitted dressing area and a luxurious en suite with twin basins, freestanding bath, and walk-through shower.

The top floor offers flexible living space, ideal as a guest suite with its own sitting area or as a private home office.

The ground floor is perfectly designed for modern living, centred around a stunning open-plan kitchen/family room. The hand-painted kitchen by Neptune features a central island with breakfast bar and a separate, generously sized pantry.

Additional accommodation includes a formal sitting room and a dedicated home office.
Outside, the level and sunny garden provides an excellent space for entertaining, with a large terrace and a private outdoor swimming pool.

Located in a highly sought-after area close to Poole Harbour, the property also benefits from private rear access to a residents-only communal green, ideal for families and dog owners. There is also the option to apply for social membership at the prestigious Parkstone Yacht Club.

Poole offers miles of coastline from scenic cliff walks to unspoilt Blue Flag sandy beaches perfect for traditional family days at the seaside. The tidal harbour offers safe and shallow waters ideal to learn the latest water sports whatever your age and there are plenty of local beauty spots to explore by land or sea. There is a good selection of excellent restaurants and bars close at hand and a wide variety of sports and social clubs make it easy to immerse yourself in the local community and meet like-minded people enjoying a luxurious coastal lifestyle.

Some local highlights:
The Boat Club at Salterns Marina - access a range of exciting motorboats for days out on the water
Royal Motor Yacht Club - exclusive members only social and yacht club
Parkstone Yacht Club - members span all ages and generations, has a proud 125-year history
The Watersports Academy - wind surfing, kite surfing, paddle boarding and more
SuStudio - Dynamic Pilates and wellness community and café
The Saltwater Sauna - on Sandbanks beach
Parkstone Golf Club - world class golf course and club facilities
Nature reserves and National Trust beaches at Studland and Brownsea Island
Osprey Cruises to enjoy the remarkable local birdlife
Cycling clubs and organised ride-outs
Weekly summer fireworks at Poole Harbour
Annual Sand Polo at Sandbanks including Sandfest music festival

And to eat:
Rick Steins Seafood restaurant Sandbanks
Shell Bay fish restaurant Studland
Rockwater restaurant and lifestyle brand Branksome Chine
Compton Acres botanical gardens and award winning café
Mark Bennetts patisseries'
St Tropez Lounge bistro on Poole Quay
Koh Thai Lilliput
South Deep Café Parkstone Bay Yacht Club

Transport links:
Lilliput is well connected being around two hours from London by car or rail. Bournemouth Airport is 20 minutes away and provides private jet services and scheduled domestic and international flights.

Local schools
Canford School - canford.com
Bryanston - bryanston.co.uk
Lilliput C of E Infant School – lilliput.poole.sch.uk
Baden Powell Junior School - bpspjunior.co.uk
Bournemouth Collegiate Prep – bournemouthcollegiateschool.co.uk
Talbot Heath School – talbotheath.org
Parkstone Grammar School – parkstone.poole.sch.uk
Poole Grammar School - poolegrammar.com

Stamp duty due

Based on a sale price of £2,295,000 the total amount of stamp duty payable will be:

*

Last updated: The calculator has been updated to reflect changes in stamp duty following the Autumn Budget on 30th October 2024 for April 1st 2025 onwards.

* This value is based on the standard rate and not applicable to first-time buyers or buy-to-let / second home buyers.

20 Property images

5 bed detached house for sale in Elms Avenue, Poole, BH14 0
5 bed detached house for sale in Elms Avenue, Poole, BH14 1
5 bed detached house for sale in Elms Avenue, Poole, BH14 2
5 bed detached house for sale in Elms Avenue, Poole, BH14 3
5 bed detached house for sale in Elms Avenue, Poole, BH14 4
5 bed detached house for sale in Elms Avenue, Poole, BH14 5
5 bed detached house for sale in Elms Avenue, Poole, BH14 6
5 bed detached house for sale in Elms Avenue, Poole, BH14 7
5 bed detached house for sale in Elms Avenue, Poole, BH14 8
5 bed detached house for sale in Elms Avenue, Poole, BH14 9
5 bed detached house for sale in Elms Avenue, Poole, BH14 10
5 bed detached house for sale in Elms Avenue, Poole, BH14 11
5 bed detached house for sale in Elms Avenue, Poole, BH14 12
5 bed detached house for sale in Elms Avenue, Poole, BH14 13
5 bed detached house for sale in Elms Avenue, Poole, BH14 14
5 bed detached house for sale in Elms Avenue, Poole, BH14 15
5 bed detached house for sale in Elms Avenue, Poole, BH14 16
5 bed detached house for sale in Elms Avenue, Poole, BH14 17
5 bed detached house for sale in Elms Avenue, Poole, BH14 18
5 bed detached house for sale in Elms Avenue, Poole, BH14 19

Further details

  • New listing: launched in the last 10 days
  • Status: Available
  • Size: 3898 sq ft
  • Tenure: Freehold
  • Parking spaces: Off Street
  • Reference: 713594

Location