Offers over £3,000,000

4 bed detached house for sale in The Horseshoe, Poole, BH13

Shortlist

Key features

  • Exclusive waterfront home in Sandbanks
  • Panoramic harbour views framing breathtaking sunsets
  • Landscaped garden with sandy beach and stylish glass fronted waterside bar room
  • Boatstore and slipway into Poole Harbour
  • Large decking area connecting living space to the garden
  • Stylish interiors including newly refitted bathrooms
  • Quiet and private cul de sac location
A beautiful Hamptons style beach house with seamless inside outside living, beach studio/bar, boathouse and secluded private gardens right down to the waterfront in the iconic and exclusive South Coast resort of Sandbanks.

The Property

Situated in a quiet cul de sac on the world famous Sandbanks Peninsula this exceptional property provides the ultimate coastal lifestyle and would make an ideal seaside home.

The house is placed right on the waterfront with stunning views over Poole Harbour to the West so you can enjoy the most glorious golden sunsets. The secluded rear garden extends right to the shoreline and is an inspiring and delightful space. Cleverly designed by the current owner it includes large composite decking levels adjoining the house, tropical landscaping, a private sandy beach and a sophisticated glass entertainment room right on the water. The perfect place to relax, socialise and sip drinks with friends and family at the bespoke bar against the stunning backdrop of the harbour scenery. There is a boat store and slipway leading directly into the harbour; a perfect launch for jet skis, a RIB, paddleboards or windsurfing.

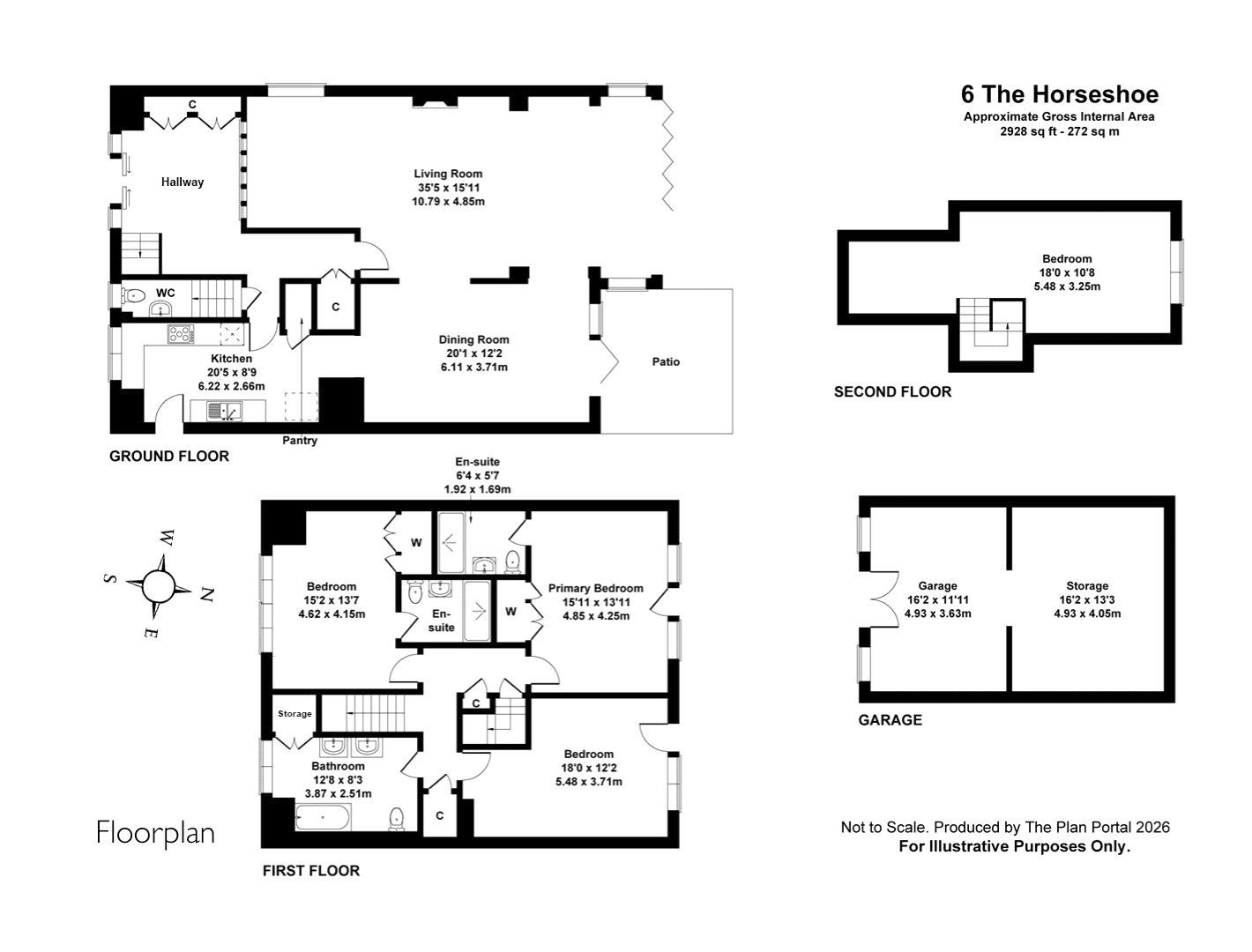
The house benefits from captivating water views from every level. The generous open plan living/dining area to the rear uses glazed doors to span the width of the home showcasing the views and providing access onto a large deck area that connects to the garden and waterfront beyond. Panoramic and unimpeded views across the water to Brownsea Island and Poole Quay mean the outlook is everchanging with nature, watercraft and weather providing year round interest. A well equipped kitchen to the front aspect conveniently connects to the dining space.

On the first floor there are three double bedrooms, the principle suite enjoys access onto a large balcony and, of course, frontline harbour views. There is a luxurious newly fitted ensuite shower room and a range of fitted storage. Bedroom two is to the front aspect with an ensuite bathroom, and the third double bedroom, again facing to the rear with balcony access and water views, is served by a beautiful family bathroom.

Hidden stairs lead to the secret second floor where you find bedroom four which would also make a great snug/studio/home office with elevated views of the harbour, a perfect hideaway to work or relax as you watch storms, sunshine or rosy sunsets over the water.

To the front of the property there is a double garage (currently used as a studio/storage space) and off road parking for two cars. A pedestrian gate leading through a pretty and private courtyard garden to the front door ensures privacy and peace.

For those seeking a luxurious and private coastal home with direct water access, exceptional entertaining spaces and the opportunity to create lasting family memories, this outstanding Sandbanks property is it.

The Location

Sandbanks is well connected being around two hours from London by car or rail. Bournemouth Airport is 20 minutes away and provides private jet services and scheduled domestic and international flights.

The Lifestyle

Sandbanks offers miles of unspoilt Blue Flag sandy beaches perfect for traditional family days at the seaside. The tidal harbour offers safe and shallow waters ideal to learn the latest water sports whatever your age and there are plenty of local beauty spots to explore by land or sea. There are a good selection of excellent restaurants and bars close at hand and a wide variety of sports and social clubs make it easy to immerse yourself in the local community and meet like-minded people enjoying a luxurious coastal lifestyle.

Some local highlights:

The Boat Club at Salterns Marina - access a range of exciting motorboats for days out on the water
Royal Motor Yacht Club - exclusive members only social, motor boat and yacht club
Parkstone Yacht Club - members span all ages and generations, has a proud 125-year history
The Watersports Academy - wind surfing, kite surfing, paddle boarding and more
SuStudio - Dynamic Pilates and wellness community and café
The Saltwater Sauna - on Sandbanks beach
Parkstone Golf Club - world class golf course and club facilities
Nature reserves and National Trust beaches at Studland and Brownsea Island
Cycling clubs and organised ride-outs
Weekly summer fireworks at Poole Harbour
Annual Sand Polo at Sandbanks including Sandfest music festival

And to eat:
Rick Steins Seafood restaurant Sandbanks
Shell Bay fish restaurant Studland
Rockwater restaurant and lifestyle brand Branksome Chine and coming soon the Sandbanks Beach
Compton Acres botanical gardens and award winning café
Mark Bennetts patisseries.
St Tropez Lounge bistro on Poole Quay
Koh Thai Tapas Lilliput
Lazy Jacks bistro Sandbanks

Life here is shaped not only by the water, but by the remarkable variety of surrounding landscapes. Positioned on the edge of Poole Harbour, day to day living naturally spills outdoors, with easy access to sailing, paddleboarding, kayaking, and swimming in calm, sheltered waters that suit all ages and abilities.

Beyond the harbour, the wider area opens up dramatically. The Jurassic Coast lies within easy reach, offering some of the most spectacular coastal scenery in the country, with rugged cliffs, hidden coves, and miles of walking routes to explore. Inland, the Purbeck countryside provides rolling hills, open heathland, and quiet country lanes, ideal for long walks, cycling, and weekend adventures. For keen cyclists, the area offers exceptional routes that combine coastal views with peaceful rural stretches, making every ride feel varied and rewarding.

Golfers are particularly well catered for, with several highly regarded courses nearby, including the prestigious Parkstone Golf Club, widely recognised as one of the finest heathland courses in the south of England. Sailing clubs, nature reserves, and beaches sit alongside excellent restaurants, cafés, and local amenities, creating a lifestyle that is as social as it is scenic.

As the day draws to a close, the west facing outlook delivers golden sunsets across the harbour, a daily reminder of how special this location is. It is a place where coastal living, countryside escape, and an active outdoor lifestyle come together effortlessly, offering a rare balance of energy, beauty, and everyday ease.

Stamp duty due

Based on a sale price of £3,000,000 the total amount of stamp duty payable will be:

*

Last updated: The calculator has been updated to reflect changes in stamp duty following the Autumn Budget on 30th October 2024 for April 1st 2025 onwards.

* This value is based on the standard rate and not applicable to first-time buyers or buy-to-let / second home buyers.

19 Property images

4 bed detached house for sale in The Horseshoe, Poole, BH13 0
4 bed detached house for sale in The Horseshoe, Poole, BH13 1
4 bed detached house for sale in The Horseshoe, Poole, BH13 2
4 bed detached house for sale in The Horseshoe, Poole, BH13 3
4 bed detached house for sale in The Horseshoe, Poole, BH13 4
4 bed detached house for sale in The Horseshoe, Poole, BH13 5
4 bed detached house for sale in The Horseshoe, Poole, BH13 6
4 bed detached house for sale in The Horseshoe, Poole, BH13 7
4 bed detached house for sale in The Horseshoe, Poole, BH13 8
4 bed detached house for sale in The Horseshoe, Poole, BH13 9
4 bed detached house for sale in The Horseshoe, Poole, BH13 10
4 bed detached house for sale in The Horseshoe, Poole, BH13 11
4 bed detached house for sale in The Horseshoe, Poole, BH13 12
4 bed detached house for sale in The Horseshoe, Poole, BH13 13
4 bed detached house for sale in The Horseshoe, Poole, BH13 14
4 bed detached house for sale in The Horseshoe, Poole, BH13 15
4 bed detached house for sale in The Horseshoe, Poole, BH13 16
4 bed detached house for sale in The Horseshoe, Poole, BH13 17
4 bed detached house for sale in The Horseshoe, Poole, BH13 18

Further details

  • Status: Available
  • Size: 2928 sq ft
  • Council tax band: H
  • Tenure: Freehold
  • Parking spaces: Garage
  • Reference: 703758

Location