Completed
Asking Price £1,150,000

4 bed detached house for sale in Moorfields Road, Poole, BH13

Shortlist

Video

Charming 1930's Detached Family Home on Moorfields Road, Canford Cliffs.

Nestled in the heart of the highly sought-after Canford Cliffs, this charming detached family home is located on the popular residential Moorfields Road. This character home sits on a comfortable plot and is bursting with period features.

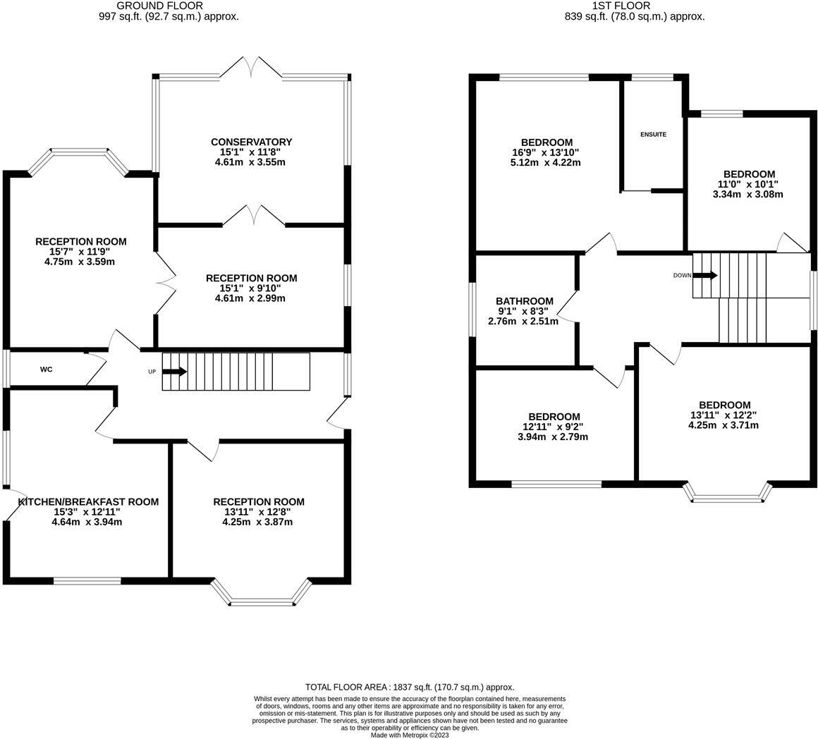
Stepping inside, the welcoming entrance hall showcases high ceilings, and the ground floor layout includes multiple reception rooms with large windows that flood the space with natural light, highlighting features such as original fireplaces, and picture rails. There is a large kitchen/breakfast room with scope for a modern open-plan design, with plenty of space to reimagine it into the heart of the home if required. Upstairs, you will find four generous bedrooms, each offering its own unique character, with ample natural light, and the primary bedroom having an ensuite shower room. There is a separate family bathroom, serving for the other bedrooms.

The expansive rear south facing garden is a true highlight of the property, featuring shrubs, and a lawn area – a wonderful blank canvas for keen gardeners or those wishing to create a picturesque outdoor living space. There is ample room to extend the property (subject to planning permission) without compromising the garden’s generous size.

Situated in the prestigious Canford Cliffs area, Moorfields Road is renowned for its leafy surroundings, tranquil environment, and close proximity to excellent beaches, schools, parks, and the village centre, with its boutique shops, cafes, and restaurants. The property’s location is just a short stroll from the beaches of Canford Cliffs and the location is enhanced by offering easy access to main transport links.

Stamp duty due

Based on a sale price of £1,150,000 the total amount of stamp duty payable will be:

*

Last updated: The calculator has been updated to reflect changes in stamp duty following the Autumn Budget on 30th October 2024 for April 1st 2025 onwards.

* This value is based on the standard rate and not applicable to first-time buyers or buy-to-let / second home buyers.

15 Property images

4 bed detached house for sale in Moorfields Road, Poole, BH13 0
4 bed detached house for sale in Moorfields Road, Poole, BH13 1
4 bed detached house for sale in Moorfields Road, Poole, BH13 2
4 bed detached house for sale in Moorfields Road, Poole, BH13 3
4 bed detached house for sale in Moorfields Road, Poole, BH13 4
4 bed detached house for sale in Moorfields Road, Poole, BH13 5
4 bed detached house for sale in Moorfields Road, Poole, BH13 6
4 bed detached house for sale in Moorfields Road, Poole, BH13 7
4 bed detached house for sale in Moorfields Road, Poole, BH13 8
4 bed detached house for sale in Moorfields Road, Poole, BH13 9
4 bed detached house for sale in Moorfields Road, Poole, BH13 10
4 bed detached house for sale in Moorfields Road, Poole, BH13 11
4 bed detached house for sale in Moorfields Road, Poole, BH13 12
4 bed detached house for sale in Moorfields Road, Poole, BH13 13
4 bed detached house for sale in Moorfields Road, Poole, BH13 14

Further details

  • Status: Completed
  • Size: 1837 sq ft
  • Council tax band: G
  • Tenure: Freehold
  • Parking spaces: Off Street
  • Reference: 602178

What else you need to know?

  • Property age bracket: Period

Location