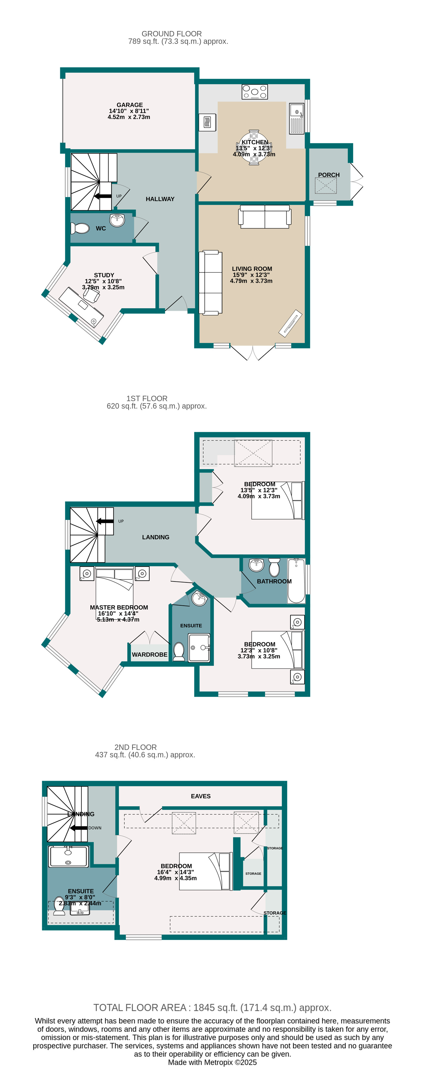
4 bed detached house for sale in Forest Road, Branksome Park, BH13
Asking Price £895,000
4 bedrooms
3 bathrooms
2 receptions
1845 sq ft
4 bedrooms
3 bathrooms
2 receptions
1845 sq ft
Further InfoEPC: Awaited, booked for 29th May 2025.
Service Charge: £490 per annum. (£244 paid so far in 2025)
Freehold property



























