Asking Price £625,000

3 bed detached house for sale in Constitution Hill Road, Poole, BH14

Shortlist

Key features

  • Modern detached bungalow in convenient Poole location
  • Vacant possession with no forward chain
  • Currently operated as a successful holiday let
  • Three double bedrooms including first floor primary suite
  • En suite plus family bathroom
  • Innovative balcony roof window with elevated outlook
  • Enclosed rear garden with patio, lawn and raised sun deck
  • Driveway parking and large garage with electric door

Video

Modern detached bungalow near Poole Park and Quay, offered chain free, three bedrooms including first floor suite with balcony roof window, enclosed sunny garden, garage and driveway.

The Property

Berkeleys Estate Agents is delighted to bring to market this modern detached bungalow, ideally positioned just a short drive or cycle from Poole Park, Poole Town Centre, Poole Quay and Ashley Cross Green. Offered with vacant possession and no forward chain, the property is currently operated as a successful holiday let, presenting either a straightforward purchase or an immediate locally-managed income opportunity, with the flexibility to enjoy the home as and when required.

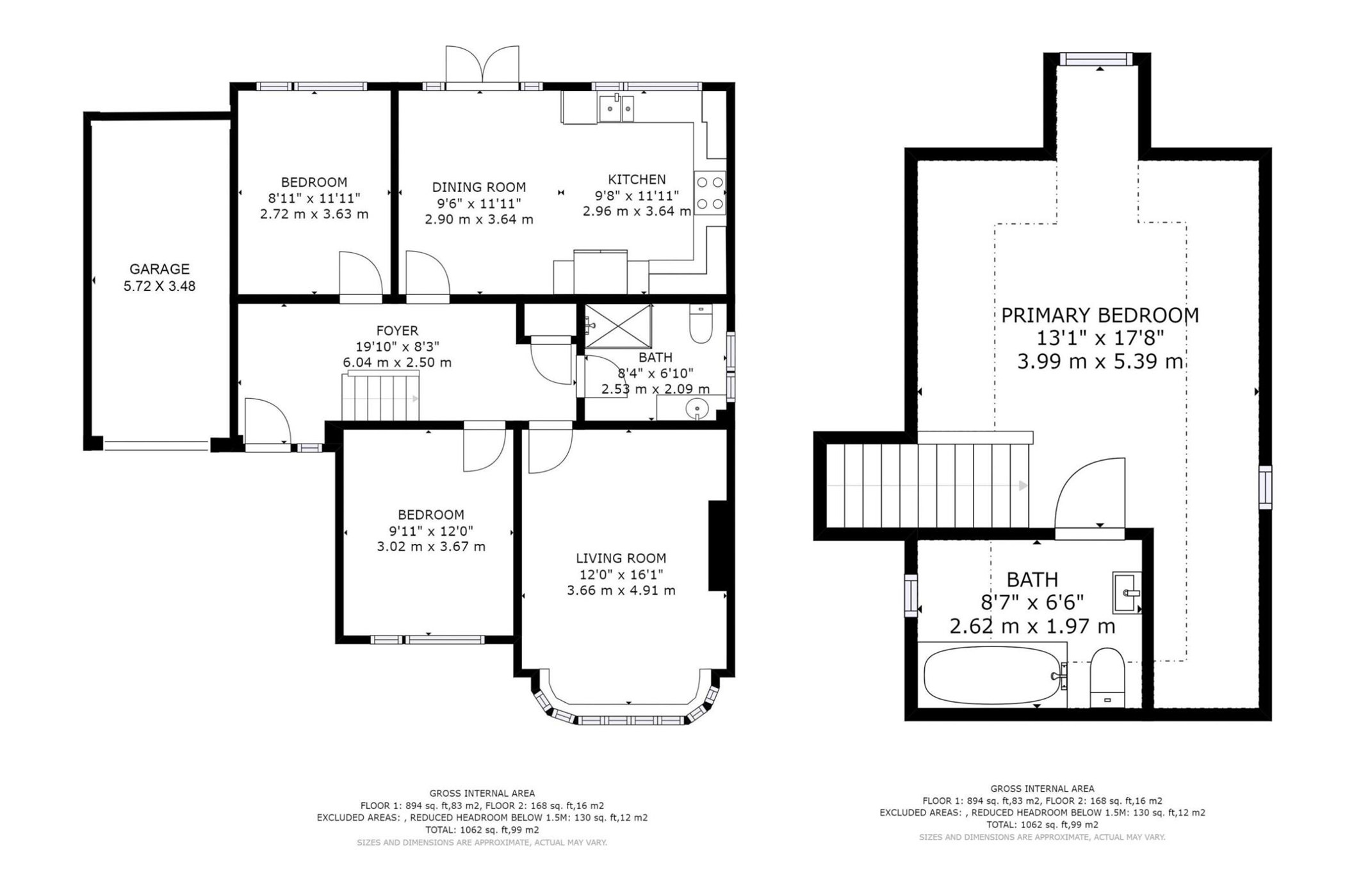
The property has been thoughtfully renovated and extended, now presented in excellent order throughout. The ground floor offers a bright entrance hallway, two generous double bedrooms positioned to the front and rear, and a contemporary shower room finished with floor to ceiling tiling and a modern waterfall style shower. A separate living room provides a cosy retreat, allowing families or guests to enjoy different areas of the home with flexibility.

To the rear, a beautifully appointed Shaker style kitchen in a striking matte finish provides plentiful storage, oak worktops and integrated Bosch appliances. This opens into the dining space, with French doors leading directly onto the sunny enclosed rear garden, creating an easy flow between inside and out. The garden itself enjoys a patio area, lawn and raised decked terrace, ideal for entertaining or relaxing in the warmer months. Internal oak doors and engineered oak flooring enhance the sense of quality throughout, with gas central heating, UPVC double glazing and a NEST heating control system completing the specification.

The first floor has been converted to create an impressive principal suite, complete with en suite bathroom and a Velux Cabrio balcony window, allowing the space to open up and enjoy elevated views with distant glimpses towards Poole Harbour.

Externally, the property benefits from a generous driveway and a single attached garage with electric door, power and lighting, offering useful storage or potential workspace flexibility, equally the garage has a painted floor, walls & ceiling which also presents an opportunity to add a gym space!

Investment Overview

56 Constitution Hill Road has already demonstrated strong performance as a holiday let, generating £46,857 in its first year to 31/10/25. This figure reflects a winter 2024/25 tenancy and the first full 2025 AirBnB season, calculated after AirBnB fees but before local management costs.

At a guide price of £625,000, this equates to an approximate gross yield of 7.5%, representing an attractive return for a well located, low maintenance property within this price bracket. The current AirBnB agent has indicated there is clear scope to increase revenue further for the 2026 season with a forecast of £52,300 this year, supported by positive guest feedback and growing booking momentum.

For investors preferring a traditional tenancy model, we would anticipate a long term rental figure in the region of £2,200 per calendar month, providing an alternative stable income stream.


Tenure: Freehold

Service Charges: N/A

Council Tax Band: D - £2,254.94

EPC Rating - C

Local Authority: BCP

Stamp duty

FTB / Home Mover £21,250
Effective Rate: 3.40%

Second Home/ Investment: £52,500
Effective Rate: 8.40%

Based on asking price.

The Location

Constitution Hill Road is ideally positioned between Poole Town Centre and Ashley Cross, offering excellent access to a wide range of amenities while remaining within a well established residential setting. Within easy reach of Poole Park, the property enjoys proximity to open green space, the boating lake, tennis courts and waterfront walks, while Poole Quay and the harbour front are just a short drive or cycle away. The popular village atmosphere of Ashley Cross, with its independent cafés, bars and green, is also close at hand, creating a location that blends convenience with lifestyle appeal. Constitution Hill Viewpoint with panoramic views to watch sunsets over the town and harbour, is just a short walk up the hill.

School Catchment Areas

• Ocean Academy
• Courthill First School
• Baden Powell & St Peters Middle School

Food & Dining:

• Dancing Moose – stylish café-bar and cookhouse with creative comfort food and cocktails, lively by night.
• Dolce Vita Poole – Italian restaurant with homemade food and warm ambience.
• indi's Restaurant in Ashley Cross – highly rated Indian cuisine.
• The 29029 Parkstone – Nepalese/Indian influenced restaurant.
• Chicken & Blues - Poole – popular casual dining option.
• Pulcinella – Italian restaurant with contemporary style.
• Nicholas James – deli and café with artisan fare.

Pubs, Bars & Social Spots:

• The Butcher's Dog Bar & Bottleshop Ashley Cross – relaxed bar with wide drinks selection.
• The Britannia, A Heartwood Inn – classic pub and restaurant with seasonal menu.
• The Ox Pub & Rooms – neighbourhood pub and dining space.
• The Cow – local pub with food and drinks.
• The Bricklayers – traditional pub near the green.
• Flamingo Café Bar - Ashley Cross – all-day café bar with food and cocktails.

Stamp duty due

Based on a sale price of £625,000 the total amount of stamp duty payable will be:

*

Last updated: The calculator has been updated to reflect changes in stamp duty following the Autumn Budget on 30th October 2024 for April 1st 2025 onwards.

* This value is based on the standard rate and not applicable to first-time buyers or buy-to-let / second home buyers.

34 Property images

3 bed detached house for sale in Constitution Hill Road, Poole, BH14 0
3 bed detached house for sale in Constitution Hill Road, Poole, BH14 1
3 bed detached house for sale in Constitution Hill Road, Poole, BH14 2
3 bed detached house for sale in Constitution Hill Road, Poole, BH14 3
3 bed detached house for sale in Constitution Hill Road, Poole, BH14 4
3 bed detached house for sale in Constitution Hill Road, Poole, BH14 5
3 bed detached house for sale in Constitution Hill Road, Poole, BH14 6
3 bed detached house for sale in Constitution Hill Road, Poole, BH14 7
3 bed detached house for sale in Constitution Hill Road, Poole, BH14 8
3 bed detached house for sale in Constitution Hill Road, Poole, BH14 9
3 bed detached house for sale in Constitution Hill Road, Poole, BH14 10
3 bed detached house for sale in Constitution Hill Road, Poole, BH14 11
3 bed detached house for sale in Constitution Hill Road, Poole, BH14 12
3 bed detached house for sale in Constitution Hill Road, Poole, BH14 13
3 bed detached house for sale in Constitution Hill Road, Poole, BH14 14
3 bed detached house for sale in Constitution Hill Road, Poole, BH14 15
3 bed detached house for sale in Constitution Hill Road, Poole, BH14 16
3 bed detached house for sale in Constitution Hill Road, Poole, BH14 17
3 bed detached house for sale in Constitution Hill Road, Poole, BH14 18
3 bed detached house for sale in Constitution Hill Road, Poole, BH14 19
3 bed detached house for sale in Constitution Hill Road, Poole, BH14 20
3 bed detached house for sale in Constitution Hill Road, Poole, BH14 21
3 bed detached house for sale in Constitution Hill Road, Poole, BH14 22
3 bed detached house for sale in Constitution Hill Road, Poole, BH14 23
3 bed detached house for sale in Constitution Hill Road, Poole, BH14 24
3 bed detached house for sale in Constitution Hill Road, Poole, BH14 25
3 bed detached house for sale in Constitution Hill Road, Poole, BH14 26
3 bed detached house for sale in Constitution Hill Road, Poole, BH14 27
3 bed detached house for sale in Constitution Hill Road, Poole, BH14 28
3 bed detached house for sale in Constitution Hill Road, Poole, BH14 29
3 bed detached house for sale in Constitution Hill Road, Poole, BH14 30
3 bed detached house for sale in Constitution Hill Road, Poole, BH14 31
3 bed detached house for sale in Constitution Hill Road, Poole, BH14 32
3 bed detached house for sale in Constitution Hill Road, Poole, BH14 33

Further details

  • Status: Available
  • Size: 1119 sq ft
  • Tenure: Freehold
  • Parking spaces: Off Street, Garage
  • Reference: 704475

What else you need to know?

  • Property age bracket: Modern

Location